STEEL電気サウナヒーターは、現代的な家庭用サウナに合う洗練されたパワフルなチョイスです。洗練されたデザインと離隔距離の短さにより、コンパクトなスチームルームでの使用に最適です。ただしそのスリムな形状とは裏腹に、内蔵のエアトンネルにより効果的な空気循環と素早い加熱が可能です。さらに、大量のサウナストーンを入れられるためやさしいスチームを長時間発生させることができます。また、天然のサウナストーンと見事なコントラストを生み出すキャッチーなステンレス鋼製のケースもポイントです。
| モデル | STEEL 6 | STEEL 9 | STEEL 11 |
|---|---|---|---|
| 離隔距離 | |||
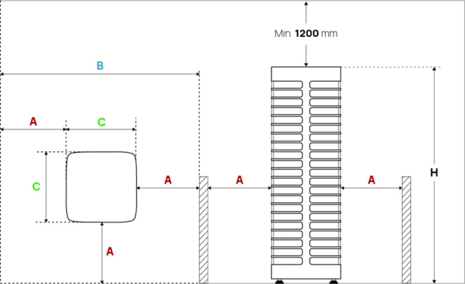
| A (mm) | 50 | 100 | 100 |
| B (mm) | 420 | 520 | 520 |
| C (mm) | 320 | 320 | 320 |
| H (mm) | 975 | 975 | 975 |
| 電源について | |||
| ブレーカー | 30 A | 40 A | 50 A |
| 入力 | 単相 200V 2~ | 単相 200V 2~ | 単相 200V 2~ |
| 電気ケーブル(mm2) | 5,3 | 8,4 | 13,3 |
| ヒーター | |||
| 定格電力 (kW) | 4,5 | 6,8 | 7,9 |
| スチームルーム 最小 (m3) | 4 | 6 | 7,5 |
| スチームルーム 最大 (m3) | 7 | 10 | 12 |
| サウナストーンの耐荷重 (kg) | 150 | 150 | 150 |
| 重量 (kg) | 15 | 15 | 16 |
| 高さ (mm) | 975 | 975 | 975 |
| 幅 (mm) | 320 | 320 | 320 |
| 奥行き (mm) | 320 | 320 | 320 |

- 電気式サウナヒーター
- 脚(調節式、4本)
- 電気式サウナヒーター 設置・取扱説明書
- 転倒防止ブラケット
- UKUサウナコントロールシステム
- 直径3~5 cmのサウナストーン150 kg
- 耐熱電源ケーブル
- サウナのインテリアデザインに合わせて、次のコントロールパネルからお選びいただけます: ガラス、 クラシック、または 木製
- UKUコントロールシステムのセットには、黒色のプラスチック製コントロールパネル、クラシックブラックが含まれています。
- 木製アーチ付きの安全手すりは、デザイン性と安全性を高めます。
- 設計オプションとして、STEEL電気サウナヒーターをサウナベンチに埋め込むことが可能です。
- ヒーターを埋め込む際は、サウナベンチの表面から少なくとも550mm出ている必要があります。
- CLIFF/STEEL電気サウナヒーターの埋め込みフランジを使用して、開口部のカットされた縁をカバーしてください。
STEEL電気サウナヒーターは、現代的な家庭用サウナに合う洗練されたパワフルなチョイスです。洗練されたデザインと離隔距離の短さにより、コンパクトなスチームルームでの使用に最適です。ただしそのスリムな形状とは裏腹に、内蔵のエアトンネルにより効果的な空気循環と素早い加熱が可能です。さらに、大量のサウナストーンを入れられるためやさしいスチームを長時間発生させることができます。また、天然のサウナストーンと見事なコントラストを生み出すキャッチーなステンレス鋼製のケースもポイントです。
| モデル | STEEL 6 | STEEL 9 | STEEL 11 |
|---|---|---|---|
| 離隔距離 | |||
| A (mm) | 50 | 100 | 100 |
| B (mm) | 420 | 520 | 520 |
| C (mm) | 320 | 320 | 320 |
| H (mm) | 975 | 975 | 975 |
| 電源について | |||
| ブレーカー | 30 A | 40 A | 50 A |
| 入力 | 単相 200V 2~ | 単相 200V 2~ | 単相 200V 2~ |
| 電気ケーブル(mm2) | 5,3 | 8,4 | 13,3 |
| ヒーター | |||
| 定格電力 (kW) | 4,5 | 6,8 | 7,9 |
| スチームルーム 最小 (m3) | 4 | 6 | 7,5 |
| スチームルーム 最大 (m3) | 7 | 10 | 12 |
| サウナストーンの耐荷重 (kg) | 150 | 150 | 150 |
| 重量 (kg) | 15 | 15 | 16 |
| 高さ (mm) | 975 | 975 | 975 |
| 幅 (mm) | 320 | 320 | 320 |
| 奥行き (mm) | 320 | 320 | 320 |

- 電気式サウナヒーター
- 脚(調節式、4本)
- 電気式サウナヒーター 設置・取扱説明書
- 転倒防止ブラケット
- UKUサウナコントロールシステム
- 直径3~5 cmのサウナストーン150 kg
- 耐熱電源ケーブル
- サウナのインテリアデザインに合わせて、次のコントロールパネルからお選びいただけます: ガラス、 クラシック、または 木製
- UKUコントロールシステムのセットには、黒色のプラスチック製コントロールパネル、クラシックブラックが含まれています。
- 木製アーチ付きの安全手すりは、デザイン性と安全性を高めます。
- 設計オプションとして、STEEL電気サウナヒーターをサウナベンチに埋め込むことが可能です。
- ヒーターを埋め込む際は、サウナベンチの表面から少なくとも550mm出ている必要があります。
- CLIFF/STEEL電気サウナヒーターの埋め込みフランジを使用して、開口部のカットされた縁をカバーしてください。
サウナ付属品
モダンな家庭用サウナ用ヒーター
STEEL電気サウナヒーターは、現代のアパートメント用サウナ向けに開発されました。その小さなサイズとパワフルな構造が、インテリアにスタイリッシュさを加えます。サウナヒーターはUKUサウナコントロールシステムと互換性があるため、どこからでもサウナを温めることができます。最適化されたSTEELサウナヒーターの構造により、離隔距離が短くて済みます。内蔵のエアトンネルにより効果的な空気の流れが確保され、サウナの加熱時間が25%短縮されます。さらに、発熱体の耐用年数を伸ばすことができます。専門家によると、マイルドなスチームを発生させるには、50kgのサウナストーンが必要となります。STEEL電気サウナヒーターはなんと150kg、壁掛け可能なSTEEL Miniでも60kgのサウナストーンを収容できます。
環境負荷を最小限に抑えたSTEEL/CLIFFサウナヒーター
STEEL 電気サウナヒーターは、受賞歴のあるCLIFF 電気サウヒーターと切り離せないペアとなっています。一方がなければ、もう一方は存在しません。これら2つのサウナヒーターは同じステンレス鋼板から製造されています。CLIFFサウナヒーターのフィンはSTEELサウナヒーターの切り抜きで作られており、すべての材料が無駄なく活用されています私たちの日々のミッションは、今の美しい自然を次世代に引き継ぐことができるよう、環境に優しい生産方法を採用することです。













